Topper Citroën Jumpy
De topper kan gemakkelijk geventileerd worden, wat meer hygiëne biedt omdat hij gemakkelijker te wassen is dan een matras. Daarom kiezen we voor een topper voor je opklapbare matras voor de Citroën Jumpy.
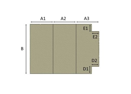
De aanbevolen afmetingen zijn: 140 cm breed x 190 cm lang x dikte naar keuze.
Vanwege veranderingen in de camper is het noodzakelijk om te controleren of de voorgestelde afmetingen passen in de beschikbare ruimte, want er kan een verschil zijn met de aanbevolen afmetingen.
Je kunt kiezen uit drie soorten schuim: visco puro, visco puro carbon en stevig, afhankelijk van jouw behoeften.
Bovendien, als je zowel in de zomer als in de winter reist en houdt van een topper die de temperatuur reguleert, voeg dan een laag Thermo-gel toe; je zult snel de voordelen zien.
Geef het een persoonlijke touch met de op maat gemaakte schuimhoezen; je vindt 5 soorten stoffen met talloze texturen en kleuren. Ze hebben ritsen en zijn volledig afneembaar, wat het wassen veel gemakkelijker maakt.
Slaap vredig op je topper voor de Citroën Jumpy!
-
Details
Maak je reizen nog comfortabeler met een op maat gemaakte topper voor je Citroën Jumpy. Ontdek onze opties voor een optimale pasvorm.
- Kies de maat die het beste bij je camper past. Houd er rekening mee dat de standaardmaat van deze topper: 190 cm lang x 140 cm breed x dikte naar keuze is.
- Kies vervolgens het aantal vouwen of schuimdelen dat je wilt voor je opvouwbare matras. De vouwen zijn gelijkmatig verdeeld langs kant B. Als je een andere verdeling wilt, laat het ons dan weten in de opmerkingen en voeg een schets toe.
- Kies uit de aanbevolen schuimen met hoge dichtheid: PURE VISCO-ELASTISCH extra zacht en super comfortabel. Ideaal als toplaag, past zich aan het lichaam aan, vermindert drukpunten en bevordert een goede nachtrust, of PURE VISCO CARBON, met dezelfde eigenschappen als PURE VISCO-ELASTISCH maar met geactiveerde koolstofdeeltjes die de thermogevoeligheid verbeteren en overmatige warmte vermijden, naast het verwijderen van geuren.
- Als je meer comfort wilt of voor mensen met allergieën, kun je een laag THERMO-GEL van 1,5 cm toevoegen, met een volledig open celstructuur die de ademendheid bevordert, de temperatuur reguleert, warmte afvoert en zweten voorkomt. Het is anti-huisstofmijt en antibacterieel.
- Voeg een hoes toe, we hebben verschillende collecties, afhankelijk van het gebruik en de stijl die je het mooist vindt. Elk van hen biedt een reeks effen of bedrukte stoffen die je bus de gewenste uitstraling geven. De hoezen hebben ritssluitingen en zijn afneembaar voor een betere wasbaarheid.
Maak je aankoop compleet met een reiskussen en/of een bescherm- en draagtasje om je topper in perfecte staat te houden!
-
Trusted Shops Reviews
-
Onze schuimen
CONVENTIONELE SCHUIMEN
Onze CONVENTIONELE SCHUIMEN zijn ontwikkeld om een optimale efficiëntie in comfort en duurzaamheid te krijgen voor een bescheiden prijs. Ze zijn vervaardigd in de EU volgens strikte veiligheidsnormen voor de personen en het milieu, en dragen ook bij aan de maatschappelijke verantwoordelijkheid door het garanderen van werkgelegenheid. Onze CONVENTIONELE SCHUIMEN hebben ook geen supplementen (vaste additieven die het echte schuim vervangen) en daarom bieden we ze aan met maximaal 5 jaar garantie*




Conventioneel schuim 20 kg/m³ Superzacht
Zacht en donzig schuim, ideaal voor wiegmatrassen, zeer zachte rugleuningen van banken en toepassingen met beperkt gewicht. Garantie van 2 jaar.


ZACHT
Schuim met gemiddelde-lage hardheid voor halfzachte rugleuningen van banken, wiegbeschermers, bekleding van hoofdeinden en zachte matrassen, erg voordelig met sporadisch gebruik. Garantie van 2 jaar.


MEDIUM
Half-hard schuim voor half-harde bankzittingen, stoelen, stevige matten, ligstoelen en stevige voordelige matrassen. Geschikt om het gemiddeld gewicht van een volwassene te dragen. Door zijn gemiddelde dichtheid is het geschikt voor dagelijks gebruik. Je kunt het comfort verbeteren door een laag TRAAGSCHUIM PUUR of TRAAGSCHUIM PUUR KOOLSTOF voor zittingen en matrassen toe te voegen; hierdoor krijg je een zachte touch aan het oppervlak zonder het gedrag van het schuim te wijzigen. Door THERMOGEL toe te voegen kun je de temperatuur regelen, waardoor het ademend vermogen verbetert en je niet gaat zweten. Garantie van 3 jaar.


Conventioneel schuim 30 kg/m³ Zacht
Stevig schuim (door zijn hoge dichtheid) maar met een zacht gedrag. Perfect voor zachte bankzittingen en voordelige matrassen met soft touch. Zijn hoge dichtheid maakt het geschikt voor intensief gebruik. Geschikt voor het dragen van lichte gewichten tot hoge gewichten van een volwassene. Het wordt aanbevolen om dit schuim met minimale dikten van 14 cm te gebruiken voor een perfect gedrag van verzakking en recuperatie. Je kunt het comfort verbeteren door een laag TRAAGSCHUIM PUUR of TRAAGSCHUIM PUUR KOOLSTOF voor zittingen en matrassen toe te voegen; hierdoor krijg je een zachte touch aan het oppervlak zonder het gedrag van het schuim te wijzigen. Door THERMOGEL toe te voegen kun je de temperatuur regelen, waardoor het ademend vermogen verbetert en je niet gaat zweten. Garantie van 4 jaar.


STEVIG
Stevig schuim (door zijn hoge dichtheid) met een hard gedrag. Voor stevige bankzittingen, stoelen, harde voordelige matrassen, poefs e.d. Zijn hoge dichtheid maakt het geschikt voor intensief gebruik. Geschikt voor het dragen van gemiddelde gewichten tot hoge gewichten van een volwassene. Voor een betere afwerking voeg je een laag TRAAGSCHUIM PUUR of TRAAGSCHUIM PUUR KOOLSTOF voor zittingen en matrassen toe. Door THERMOGEL toe te voegen kun je de temperatuur regelen, waardoor het ademend vermogen verbetert en je niet gaat zweten. Garantie van 4 jaar.


EXTRA HARD
Extra hard schuim voor poefs, extra harde zittingen, sportmatten e.d. Zijn hoge dichtheid maakt het geschikt voor intensief gebruik. Geschikt voor dunne schuimen die een gemiddeld of hoog gewicht moeten dragen. Je kunt het comfort verbeteren door een laag TRAAGSCHUIM PUUR of TRAAGSCHUIM PUUR KOOLSTOF voor zittingen en matrassen toe te voegen; hierdoor krijg je een zachte touch aan het oppervlak zonder het gedrag van het schuim te wijzigen. Door THERMOGEL toe te voegen kun je de temperatuur regelen, waardoor het ademend vermogen verbetert en je niet gaat zweten. Garantie van 5 jaar.
SUPERIEURE KWALITEIT
Onze exclusieve SCHUIMEN HR SUPERIOR (HR of Hoge veerkracht) vertonen een erg flexibel gedrag met hoog recuperatievermogen. Ze zijn ontwikkeld om een maximale effectiviteit in comfort en duurzaamheid te krijgen, voor gebruik in bekleding en nachtrust. Ze zijn vervaardigd in de EU volgens strikte veiligheidsnormen voor de personen en het milieu, en dragen ook bij aan de maatschappelijke verantwoordelijkheid door het garanderen van werkgelegenheid. Onze SCHUIMEN HR SUPERIOR hebben ook geen supplementen (vaste additieven die het echte schuim vervangen) en daarom bieden we ze aan met maximaal 10 jaar garantie*




Superieur schuim HR 20 kg/m³ Superzacht
Erg zacht schuim met hoge recuperatie en 'donstouch', ideaal voor gebruik met beperkt gewicht, zachte aanraking en hoog comfort zoals wiegmatrassen, erg zachte rugleuningen van banken e.d. Ondanks de lage dichtheid zorgt de HR-formule voor een hoge duurzaamheid in de beschreven toepassingen. Het wordt aanbevolen om dit schuim met minimale dikten van 15 cm (10 cm voor wieg) te gebruiken voor een perfect gedrag van verzakking en recuperatie. Garantie van 3 jaar.


ZACHT
Schuim met hoge recuperatie en gemiddelde-lage hardheid voor stevige rugleuningen van banken, zachte zittingen van banken en zachte matrassen van hoge kwaliteit. Door zijn hoge dichtheid is hij geschikt voor intensief gebruik met een hoge duurzaamheid, voor het dragen van lichte tot hogere gewichten van een volwassene. Het wordt aanbevolen om dit schuim met minimale dikten van 14 cm te gebruiken voor een perfect gedrag van verzakking en recuperatie. Je kunt het comfort verbeteren door een laag TRAAGSCHUIM PUUR of TRAAGSCHUIM PUUR KOOLSTOF voor zittingen en matrassen toe te voegen; hierdoor krijg je een zachte touch aan het oppervlak zonder het gedrag van het schuim te wijzigen. Door THERMOGEL toe te voegen kun je de temperatuur regelen, waardoor het ademend vermogen verbetert en je niet gaat zweten. Garantie van 4 jaar.


MEDIUM
Half-hard schuim met hoge recuperatie voor zittingen van banken en stevige matrassen van hoge kwaliteit. Door zijn hoge dichtheid is hij geschikt voor intensief gebruik met een hoge duurzaamheid, voor het dragen van lichte tot hogere gewichten van een volwassene. Het wordt aanbevolen om dit schuim met minimale dikten van 12 cm te gebruiken voor een perfect gedrag van verzakking en recuperatie. Je kunt het comfort verbeteren door een laag TRAAGSCHUIM PUUR of TRAAGSCHUIM PUUR KOOLSTOF voor zittingen en matrassen toe te voegen; hierdoor krijg je een zachte touch aan het oppervlak zonder het gedrag van het schuim te wijzigen. Door THERMOGEL toe te voegen kun je de temperatuur regelen, waardoor het ademend vermogen verbetert en je niet gaat zweten. Garantie van 4 jaar.


STEVIG
Hard schuim met hoge recuperatie voor zittingen van banken en harde matrassen van hoge kwaliteit. Door zijn hoge dichtheid is hij geschikt voor intensief gebruik met een hoge duurzaamheid, voor het dragen van lichte tot hogere gewichten van een volwassene. Het wordt aanbevolen om dit schuim met minimale dikten van 10 cm te gebruiken voor een perfect gedrag van verzakking en recuperatie. Je kunt het comfort verbeteren door een laag TRAAGSCHUIM PUUR of TRAAGSCHUIM PUUR KOOLSTOF voor zittingen en matrassen toe te voegen; hierdoor krijg je een zachte touch aan het oppervlak zonder het gedrag van het schuim te wijzigen. Door THERMOGEL toe te voegen kun je de temperatuur regelen, waardoor het ademend vermogen verbetert en je niet gaat zweten. Garantie van 5 jaar.


Superieur schuim Comfort bultex HR 32 kg/m³ Zacht
PREMIUM schuim met hoge recuperatie en duurzaamheid, met een zacht gedrag voor stevige rugleuningen van banken en zachte zittingen van banken in extra kwaliteit. Door zijn hoge dichtheid is hij geschikt voor intensief gebruik met een hoge duurzaamheid, voor het dragen van lichte tot hogere gewichten van een volwassene. Het wordt aanbevolen om dit schuim met minimale dikten van 14 cm te gebruiken voor een perfect gedrag van verzakking en recuperatie. Je kunt het comfort verbeteren door een laag TRAAGSCHUIM PUUR of TRAAGSCHUIM PUUR KOOLSTOF voor zittingen, campermatten enz. toe te voegen; hierdoor krijg je een zachte touch aan het oppervlak zonder het gedrag van het schuim te wijzigen. Door THERMOGEL toe te voegen kun je de temperatuur regelen, waardoor het ademend vermogen verbetert en je niet gaat zweten. Om contractuele redenen hebben we geen goedkeuring van de eigenaar van het merk om "COMFORT BULTEX" in Spanje op de markt te brengen voor gebruik in matrassen. Garantie van 5 jaar.


Superieur schuim Comfort bultex HR 38 kg/m³ Gemiddeld
PREMIUM schuim met hoge recuperatie en duurzaamheid, met een half-hard gedrag voor stevige zittingen van banken in extra kwaliteit. Door zijn hoge dichtheid is hij geschikt voor intensief gebruik met een hoge duurzaamheid, voor het dragen van lichte tot hogere gewichten van een volwassene. Het wordt aanbevolen om dit schuim met minimale dikten van 12 cm te gebruiken voor een perfect gedrag van verzakking en recuperatie. Je kunt het comfort verbeteren door een laag TRAAGSCHUIM PUUR of TRAAGSCHUIM PUUR KOOLSTOF voor zittingen, campermatten enz. toe te voegen; hierdoor krijg je een zachte touch aan het oppervlak zonder het gedrag van het schuim te wijzigen. Door THERMOGEL toe te voegen kun je de temperatuur regelen, waardoor het ademend vermogen verbetert en je niet gaat zweten. Om contractuele redenen hebben we geen goedkeuring van de eigenaar van het merk om "COMFORT BULTEX" in Spanje op de markt te brengen voor gebruik in matrassen. Garantie van 7 jaar.


Superieur schuim Comfort Bultex HR 42 kg/m³ Hard
PREMIUM schuim met hoge recuperatie en duurzaamheid, met een hard gedrag voor half-harde zittingen van banken in extra kwaliteit. Door zijn hoge dichtheid is hij geschikt voor intensief gebruik met een hoge duurzaamheid, voor het dragen van lichte tot hogere gewichten van een volwassene. Het wordt aanbevolen om dit schuim met minimale dikten van 10 cm te gebruiken voor een perfect gedrag van verzakking en recuperatie. Je kunt het comfort verbeteren door een laag TRAAGSCHUIM PUUR of TRAAGSCHUIM PUUR KOOLSTOF voor zittingen, campermatten enz. toe te voegen; hierdoor krijg je een zachte touch aan het oppervlak zonder het gedrag van het schuim te wijzigen. Door THERMOGEL toe te voegen kun je de temperatuur regelen, waardoor het ademend vermogen verbetert en je niet gaat zweten. Om contractuele redenen hebben we geen goedkeuring van de eigenaar van het merk om "COMFORT BULTEX" in Spanje op de markt te brengen voor gebruik in matrassen. Garantie van 10 jaar.
NAUTISCHE KWALITEIT
Onze SCHUIMEN VOOR SPECIFIEK GEBRUIK zijn ontwikkeld om te voldoen aan uiteenlopende behoeften, zoals weerstand en zelfblussend vermogen bij brand, schimmelwerende en bacteriedodende eigenschappen, en filtering van water en lucht. Deze specifieke kenmerken worden gegarandeerd via onafhankelijke laboratoriumtests, die de schuimen certificeren voor gebruik in openbare en privéruimten. Ze zijn vervaardigd in de EU volgens strikte veiligheidsnormen voor de personen en het milieu, en dragen ook bij aan de maatschappelijke verantwoordelijkheid door het garanderen van werkgelegenheid. Onze SCHUIMEN VOOR SPECIFIEK GEBRUIK hebben ook geen supplementen (vaste additieven die het echte schuim vervangen) en daarom bieden we ze aan met maximaal 10 jaar garantie*




WATERFILTRATIESCHUIM
Sterk waterfilterend en sneldrogend schuim met behandeling tegen schimmel, met name aanbevolen voor weerbestendige bekledingen zoals TUINEN, ZWEMBADEN of SCHEEPSDEKKEN. Voor een hogere effectiviteit bij de afvoer van water en het snel drogen wordt het aanbevolen om aan de niet-zichtbare onderzijde van de hoes FILTERROOSTER te gebruiken. Garantie van 4 jaar.


ADEMEND SCHUIM
Sterk ademend schuim met een hoge luchtcirculatie aan de binnenzijde en behandeling tegen schimmel, met name aanbevolen voor CAMPERMATRASSEN, CARAVANS, SCHEEPSHUTTEN of VRACHTWAGENS. Om de effectiviteit in de luchtcirculatie te verhogen en zo de ophoping van warmte te vermijden, wordt het aanbevolen om voor de stof van de hoes de collectie SILVERSTONE of AIR-3D te kiezen. Je kunt het comfort verbeteren met 'silk touch' aanraking door THERMOGEL toe te voegen; zo kun je de temperatuur regelen, waardoor het ademend vermogen verbetert en je niet gaat zweten. Garantie van 4 jaar.


Schuim voor specifiek gebruik 25 kg. FR Brandvertragend
GECERTIFICEERD BRANDVERTRAGEND half-hard schuim voor half-harde zittingen van zitbanken, stevige matten, ligstoelen en hardere matrassen. Geschikt om het gemiddeld gewicht van een volwassene te dragen. Door zijn gemiddelde dichtheid is het geschikt voor dagelijks gebruik. Je kunt het comfort verbeteren door een laag TRAAGSCHUIM PUUR voor zittingen en matrassen toe te voegen; hierdoor krijg je een zachte touch aan het oppervlak zonder het gedrag van het schuim te wijzigen. Door THERMOGEL toe te voegen kun je de temperatuur regelen, waardoor het ademend vermogen verbetert en je niet gaat zweten. Garantie van 3 jaar.


Schuim voor specifiek gebruik HR 40 kg/m³ CMHR Brandvertragend
GECERTIFICEERD BRANDVERTRAGEND (CMHR40) schuim met hoge recuperatie voor zittingen van banken en harde matrassen van hoge kwaliteit. Door zijn hoge dichtheid is hij geschikt voor intensief gebruik met een hoge duurzaamheid, voor het dragen van lichte tot hogere gewichten van een volwassene. Het wordt aanbevolen om dit schuim met minimale dikten van 10 cm te gebruiken voor een perfect gedrag van verzakking en recuperatie. Je kunt het comfort verbeteren door een laag TRAAGSCHUIM PUUR voor zittingen en matrassen toe te voegen; hierdoor krijg je een zachte touch aan het oppervlak zonder het gedrag van het schuim te wijzigen. Door THERMOGEL toe te voegen kun je de temperatuur regelen, waardoor het ademend vermogen verbetert en je niet gaat zweten. Garantie van 5 jaar.
Afwerkingen die het schuim verbeteren
ONZE SCHUIMEN EN VEZELS VOOR AFWERKING zijn ontwikkeld om het comfort te verbeteren en de schuimen eigenschappen te geven zoals ademend vermogen, temperatuurregeling, eliminatie van geuren, vermijden van zweten, afgerond donzig uiterlijk en eenvoudige invoer in de hoes. Onze exclusieve, intelligente configurator van MIJNSCHUIMOPMAAT.COM biedt je de mogelijkheid om deze optionele afwerkingen enkel toe te passen met de geschikte schuimen, vormen en dikten, zodat verkeerde configuraties worden voorkomen. Onze tip is om deze afwerkingen toe te voegen indien de configurator het aanbiedt; zo kun je het comfort aanzienlijk verhogen zonder fouten te maken. Deze SCHUIMEN EN VEZELS VOOR AFWERKING zijn vervaardigd volgens dezelfde eisen en kwaliteitsnormen als onze CONVENTIONELE SCHUIMEN en onze SCHUIMEN HR SUPERIOR.




Afgewerkt met PUUR TRAAGSCHUIM 52 kg/m³
PUUR TRAAGSCHUIM, extra mollig en superzacht voor hoog comfort, ideaal als bovenlaag voor alle soorten matrassen, matten en bankzittingen dankzij de perfecte aanpasbaarheid aan het lichaam. Onze exclusieve, intelligente configurator van MIJNSCHUIMOPMAAT.COM biedt je de mogelijkheid om PUUR TRAAGSCHUIM enkel toe te passen met de geschikte schuimen en dikten, zodat verkeerde configuraties worden voorkomen. Wil je het comfort verbeteren, dan raden we aan om PUUR TRAAGSCHUIM toe te passen indien de configurator dit aanbiedt – hoe dikker het PUUR TRAAGSCHUIM, hoe hoger het comfort.


Afgewerkt met PUUR TRAAGSCHUIM KOOLSTOF 52 kg/m³
PUUR TRAAGSCHUIM KOOLSTOF schuim, extra mollig en superzacht voor hoog comfort, ideaal als bovenlaag voor alle soorten matrassen, matten en bankzittingen dankzij de perfecte aanpasbaarheid aan het lichaam. De deeltjes van ACTIEVE KOOLSTOF verbeteren de thermische gevoeligheid. Zo wordt overmatige warmte vermeden en worden ook geurtjes geëlimineerd. Onze exclusieve, intelligente configurator MIJNSCHUIMOPMAAT.COM biedt je de mogelijkheid om PUUR TRAAGSCHUIM KOOLSTOF enkel toe te passen met de geschikte schuimen en dikten, zodat verkeerde configuraties worden voorkomen. Wil je het comfort verbeteren, dan raden we aan om PUUR TRAAGSCHUIM KOOLSTOF toe te passen indien de configurator dit aanbiedt – hoe dikker het PUUR TRAAGSCHUIM KOOLSTOF, hoe hoger het comfort.


Afgewerkt met THERMOGEL 52 kg/m³
Schuim van hoge dichtheid met geldeeltjes voor een extra zijdezachte touch. Door zijn celstructuur met volledig open porie haalt het uitzonderlijke waarden van ademend vermogen en vochtdoorlaatbaarheid, wat het de beste optie maakt om de temperatuur te regelen, warmte af te voeren en zweten te voorkomen. Het is ideaal als laatste contactlaag op TRAAGSCHUIM PUUR of TRAAGSCHUIM PUUR KOOLSTOF, ofwel rechtstreeks op SCHUIMEN SUPERIOR HR, COMFORT BULTEX HR of conventionele schuimen. Onze exclusieve, intelligente configurator van MIJNSCHUIMOPMAAT.COM biedt je de mogelijkheid om THERMOGEL enkel toe te passen met de geschikte schuimen, zodat verkeerde configuraties worden voorkomen. Indien je meer comfort wilt, raden we aan om THERMOGEL toe te passen indien de configurator dit aanbiedt.
Afgewerkt met VEZEL WATTEN 150 g/m²
VEZEL WATTEN 150 g/m² holle silicone geeft je bank of matras een afgerond, donzig uiterlijk. Bovendien schuift het schuim zo beter in de hoes. De toepassing van VEZEL WATTEN 150 g/m² hindert in geen geval de bovenlagen van speciale schuimen zoals THERMOGEL, TRAAGSCHUIM PUUR of TRAAGSCHUIM PUUR KOOLSTOF, aangezien enkel een ruimte van 97% lucht wordt gecreëerd die verdwijnt bij de minste druk; bij contact met je bank of matras geniet je dus van de waarden en eigenschappen van ons schuim. Onze exclusieve, intelligente configurator van MIJNSCHUIMOPMAAT.COM biedt je de mogelijkheid om VEZEL 150 g/m² enkel toe te passen met de geschikte schuimen, zodat verkeerde configuraties worden voorkomen. Om het stuk een mooiere look te geven en het makkelijker in en uit de hoes te kunnen steken, raden we aan om VEZEL 150 g/m² toe te passen indien de configurator dit aanbiedt. De toepassing van VEZEL WATTEN 150 g/m² voorkomt dat de kleur van het schuim doorschijnt in hoezen met zeer lichte stoffen.


Afgewerkt met FIBRA-TEX 200 g/m²
FIBRA-TEX 200 g/m² holle silicone met 100% polyester stof geeft je bank of matras een afgerond, donzig uiterlijk. Bovendien schuift het schuim zo beter in de hoes. De 100% polyester stof is gelamineerd op de vezel en fungeert zo als binnenhoes. We naaien de vezel op het schuim, waardoor geen chemische lijm moet worden gebruikt. De toepassing van FIBRA-TEX 200 g/m² hindert in geen geval de bovenlagen van speciale schuimen zoals THERMOGEL, TRAAGSCHUIM PUUR of TRAAGSCHUIM PUUR KOOLSTOF, aangezien enkel een ruimte van 95 % lucht wordt gecreëerd die verdwijnt bij de minste druk; bij contact met je bank of matras geniet je dus van de waarden en eigenschappen van ons schuim. Onze exclusieve, intelligente configurator van MIJNSCHUIMOPMAAT.COM biedt je de mogelijkheid om FIBRA-TEX 200 g/m² enkel toe te passen met de geschikte schuimen, zodat verkeerde configuraties worden voorkomen. Om het stuk een mooiere look te geven en het makkelijker in en uit de hoes te kunnen steken, raden we aan om FIBRA-TEX 200 g/m² toe te passen indien de configurator dit aanbiedt. De toepassing van FIBRA-TEX 200 g/m² voorkomt dat de kleur van het schuim doorschijnt in hoezen met zeer lichte stoffen.
* De garantie dekt materiaaldefecten maar geen slijtage veroorzaakt door verkeerd gebruik.
** De getoonde kleuren van de verschillende schuimen en afwerkingen zijn niet bindend, aangezien ze kunnen variëren naargelang de partij.
-
Onze hoezen
ONZE HOESEN
Bij Mijn Schuim op Maat gebruiken we stoffen, textielen en materialen van hoge kwaliteit die uitzonderlijke eigenschappen aan onze producten bieden. Dankzij hun kenmerken garanderen we dat ze hun duurzaamheid behouden en lange tijd in optimale staat blijven. We ontwerpen producten die lang meegaan. We bieden topkwaliteit stoffen met vlekbestendige afwerkingen, bescherming tegen UV-stralen om bestand te zijn tegen de zon, en bovendien zijn veel van deze stoffen machinewasbaar voor gemakkelijke verzorging.
De vervaardiging van onze hoezen is ook premium, wat garandeert dat je product niet alleen een uitstekende uitstraling heeft van buitenaf, maar ook een superieure kwaliteit van binnen.
De premium kenmerken van ons type vervaardiging zijn:- - Verborgen rits met flappen voor een discrete afwerking
- - U-vormige rits ontworpen voor het snel en gemakkelijk aan- en uittrekken van de hoes
- - De strikken of linten zijn gemaakt van dezelfde stof als het kussen voor een uniforme en elegante afwerking
- - Keuze tussen filtrerende of antislipbasis, afhankelijk van jouw behoefte: een optie die water afvoert of een basis die ervoor zorgt dat het kussen niet verschuift, en genaaid met een rand stof om te voorkomen dat het aan de onderkant zichtbaar is
- - Stiksels met piping, vervaardigd met dezelfde stof als de hoes, met de optie om een contrasterende kleur te kiezen voor een persoonlijke touch
- - Omgezoomde stiksels, een type moderne en eigentijdse afwerking die een actuele toets aan het ontwerp toevoegt.
Voor het maken van je hoes kun je kiezen uit meer dan 400 opties, aangepast aan jouw behoeften afhankelijk van het gebruik (buiten, binnen, matras), de kleur, de bestsellers, prijsklasse en de verschillende beschikbare collecties. We vergemakkelijken de selectie van de stof met gepersonaliseerde filters om beter aan jouw voorkeuren te voldoen.
Er zijn enkele belangrijke details waar je rekening mee moet houden met betrekking tot onze hoezen:- - Standaard plaatsen we de rits aan de langste zijde om het aan- en uittrekken te vergemakkelijken. Bij zitkussens bevindt de rits zich aan de achterkant, tegen de muur; bij rugkussens bevindt deze zich aan de onderkant. Als je wilt dat deze ergens anders zit, stuur ons dan gewoon een schets.
- - We kiezen een rits in de kleur die het beste bij de stof past. Voor producten voor buitengebruik gebruiken we speciaal ontworpen ritsen die bestand zijn tegen de omstandigheden buitenshuis.
- - Als jouw stuk groter is dan 140 cm x 200 cm, heeft de hoes één of twee extra stiksels om de stof te verbinden.
- - Als je eerder al hoezen hebt besteld en je bestelt dezelfde stof opnieuw, kunnen er kleine kleurverschillen optreden vanwege variaties in het verven van verschillende productiepartijen. Daarom raden we aan om, als je meerdere hoezen nodig hebt, deze allemaal tegelijk te bestellen om de grootste uniformiteit te garanderen.
- - Wanneer de stof dit vereist, maken we een afwerkzoom om te voorkomen dat deze gaat rafelen en om een duurzame afwerking te waarborgen.
Als je vragen hebt, staat onze commerciële afdeling klaar om je via e-mail te helpen. Aarzel niet om contact met ons op te nemen!
-
Fotogalerij van klanten
Er zijn geen foto's beschikbaar in deze winkel


N1 in Spanje


Garantie en kwaliteit


100% op maat


Vervoer


Betalen